2003
能代市立浅内小学校
能代市/木造/地上2階建/延床面積5,113m2
なだらかなランドスケープ、シンプルでのびやかな形態
敷地は、日本海からのなだらかな縄文遺跡の丘陵に位置する。なだらかなランドスケープに新しいシルエットを与えつつも、周辺の緑を圧迫せず、緩やかな稜線を崩すことない調和のとれた姿とし、古えより変わらぬ広大な自然や歴史ある風景にとけ込むたたずまいとして考えた。
建物形態は、先進的・合理的を旨とし、無駄のないシンプルでのびやかなデザインとした。原形的かつ未来的イメージを与えるとともに、生産・維持・変換・補修・コスト面等総合的な観点からみても多くの面で配慮をした。


旧校舎は浅内集落の人々が何代にもわたり通学し、異なる世代間で共通話題をもてる象徴的な校舎である。その旧校舎のイメージを引き継ぎ、新校舎であっても懐かしく思え、子供たちにとっても古くて新しい校舎に考えた。

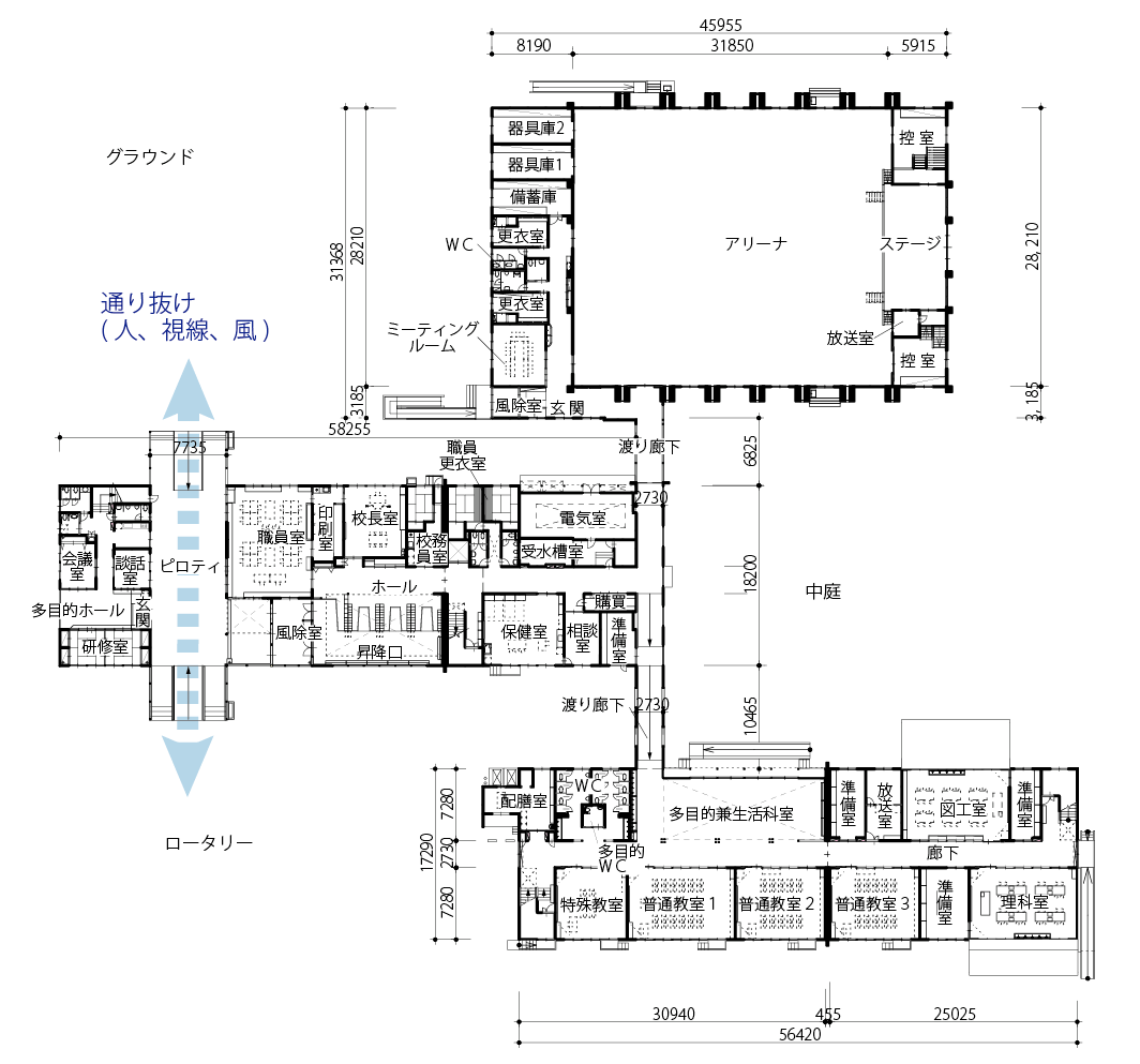
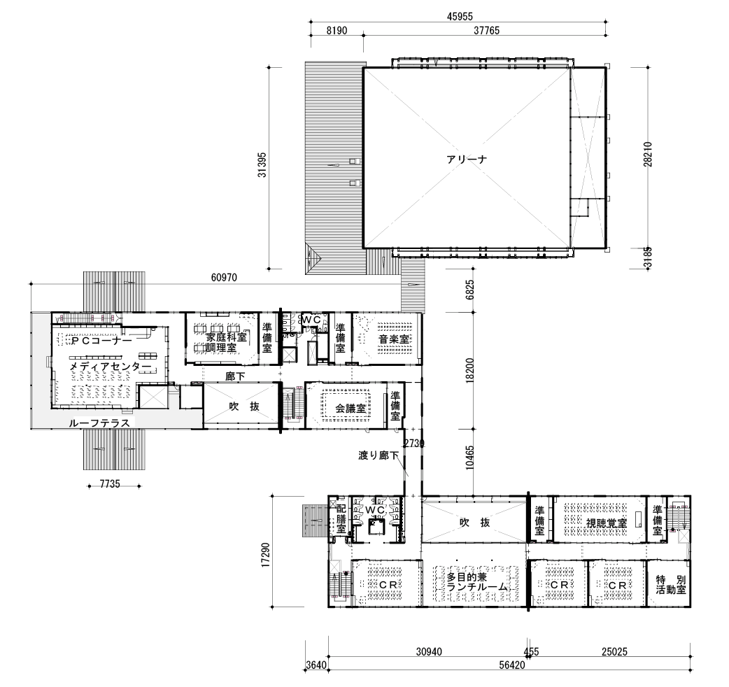
校舎配置は一般教室棟や管理室を含む開放教室棟、体育館棟をそれぞれの適切な地盤レベルに配置し、渡り廊下によってレベル差を解消する配置で、土工事や擁壁工事を少なくした。

図書室からの 3 方向の展望は、男鹿半島、防風林、風力発電、浅内沼、白神山地、集落など心に刻まれる美しい風景が一望できる。


木都に相応しい純木造校舎
1) 日本、秋田の優れた木材技術を活かす。
秋田杉を中心とした恵まれた素材と加工技術を生かし、更に日頃、研修・研究している北欧や中欧などの木造建築技術、建築物理学・生物学等の先鋭的、科学的な技術を取り入れた高耐久・高性能な建築。
2) 純木造校舎
渡り廊下で別棟扱いすることで、鉄筋コンクリート部分が不要(防火壁は必要)になり純木造を実現。外壁防火構造は安価な杉板防火構造(防火板下地)。
3) 外観
1棟は単純な杉板張りが似合うキュービクルな単体とし、3棟と渡り廊下は中庭・前庭・グランドの周囲空間を取込み、周辺環境に親和した魅力ある校舎になった。
4) 内観
真壁と屋根断熱により骨太な杉の梁組や柱が見え、白壁と調和した天井板・腰板・床板からなる豊かな木造空間。



地産地消の地場産材と技術の有効活用
地域材と地域技術によるローコスト木造在来工法で良質な建築の設計と建設。柱は秋田スギ5寸の割角(大径木芯去材)と芯持材を適材適所。大量安定供給は能代木産連木材供給ネットワーク利用。秋田スギ他無垢材・集成材の構造材、秋田スギ内装材・造作材、秋田スギ杉樹皮断熱材(ボード、粒状)で断熱気密仕様、安価版木製サッシ・内部木製戸・家具を使用した。
省エネ、省CO2
熱損失係数(Q値)=1.20(W/m2・K)と次世代省エネ基準(2.4)の2倍の性能。生産エネルギーの少ない材料の使用、木材多用で省CO2。
校舎はRC造より安い単価
木造の学校を特別なものではなく一般的に普及可能とするため、RC造以下の工事費となるようローコストを実現。校舎は19万5千円/m2、体育館が24万9千円。
木構造の概要
150角の秋田スギ柱と、市内工場で製作された集成材梁で構成している。原則として最も手慣れていてコストダウン可能な在来工法を用いた。構造計算により既成金物で対応出来ない部分は鉄骨製作のものを用い、ボルトとドリフトピンで固定している。体育館については、RC部分を最小限に抑え、コスト高となる湾曲集成材を用いず、通直集成材を上手に編んで強度を確保した。材料調達においては、秋田杉の規格化、標準化を図り、乾燥方法、品質向上などを含め安定した供給体制(秋田杉供給ネットワーク)の構築に努めた。



能代市立浅内小学校
- 所在地/能代市
- 施主/能代市
- 設計者/設計チーム木協同組合
- 施工者/(校舎)中田・大森・サンワ建設工事JV、(体育館)大高•安藤建設工事JV
- 延床面積/5,113m2
- 構造/木造
- 階層/地上2階建
- 施工年/2003年
外部仕様
- 屋根/(校舎)ガルバリウム鋼板(素地)t0.4 段葺 (体育館)ガルバリウム鋼板(素地)t0.8 折板葺き
- 外壁/杉板縦張り目板打ち 鉱物系天然塗料塗り 敷板 t21w210 目板 t15w75
- 開口部/アルミ樹脂複合断熱サッシ
内部仕様
- (普通教室)天井/インシュレーションボード t20 下地杉板 t9 目透かし張り
- (普通教室)壁/シナ合板 t5.5(腰壁)、珪藻土薄塗り(壁)
- (普通教室)床/ブナ単層フローリング t15
- (体育館)天井/グラスウールボードt25
- (体育館)壁/杉難燃化粧合板t12
- (体育館)床/ブナ厚貼り複合フロア t15 断熱材
- (校舎)屋根/高性能グラスウール 16kg t 150
- (校舎)外壁/粒状杉樹皮繊維t 120(壁)
- (校舎)基礎/押出法ポリスチレンフォーム 3 種 b t 50